Цена
30 апреля 2025
Параметры
Вид объекта Дом
Этажей в доме 1
Материал стен Кирпич
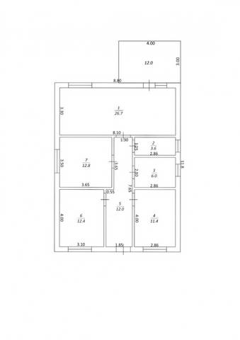
Площадь дома, м2 97
Площадь участка, сот. 5
Продавец Посредник
Описание
Пpoдaется новый дом ст. Старомышастовская, ул. Северная, 97/ 37/ 27, кирп. Пред-лагаем Вашему вниманию 1-этажный кирпичный дом, построенный в 2025 году, общей пло-щадью 97 кв.м. Описание дома: 3 спальни: 12.4 м², 12.8 м², 11.4 м². Просторная кухня-гостиная: 26.7 м² с выходом на террасу 12 м². Санузел: 6 м². Гардеробная: 3.6 м². Прихожая: 12 м². Земельный участок: 5 соток, ИЖС. Коммуникации: электричество: 15 кВт., централь-ный газ и вода, канализация септик на 7 кубов. Дом расположен на тихой асфальтированной улице, недалеко от живописной реки Кочеты. В станице есть несколько детских садиков и школ (школьный автобус в одном квартале от дома), магазины, аптеки. Автобусы в Краснодар ходят каждые 30 минут. В стоимость входит предчистовая отделка, стяжка пола с теплыми полами, разводка отопления и все заведенные коммуникации (газовый котел). Рассмотрим любые варианты ипотеки.
Местоположение

















