Цена
22 августа 2024
Параметры
Вид объекта Дом
Этажей в доме 1
Материал стен Пеноблоки
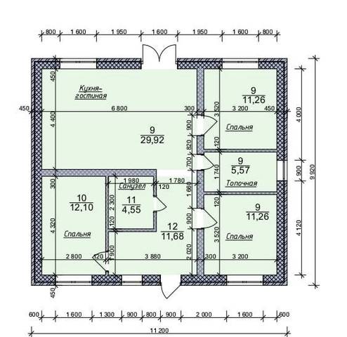
Площадь дома, м2 100
Площадь участка, сот. 5
Продавец Посредник
Описание
Продаётся дом в СНТ «Нива», 100/ 35/ 30, 1-о эт.пенобетон. Дом 2024 г.п. Продается дом в СНТ Нива (подъезд по асфальтной дороги). Площадь дома 100 кв. м, участок - 5.4 сотки. В доме 3 комнаты, кухня-гостиная с выходом на террасу, прихожая, санузел, котельная. Сделана хорошая предчистовая отделка. По периметру дома забор из металлопрофиля, ворота откатные, залита площадка для авто. Коммуникации: центральная вода, септик, электричество 15 кВт. Идеальное соотношение цены и местоположения! Звоните, встретимся на показе!
Местоположение
Похожие объявления





















